Leistungsprofil

  • Konstruktionen und Statik im Holz-, Mauerwerks-, Stahl-und Stahlbetonbau
  • Bautechnische Beurteilungen, Beurteilungen vorhandener Baustubstanz, Bestandsaufnahmen und Aufmaße, Beurteilung der Standsicherheit und Tragfähigkeit von Gebäuden, Tragwerken und Konstruktionen  
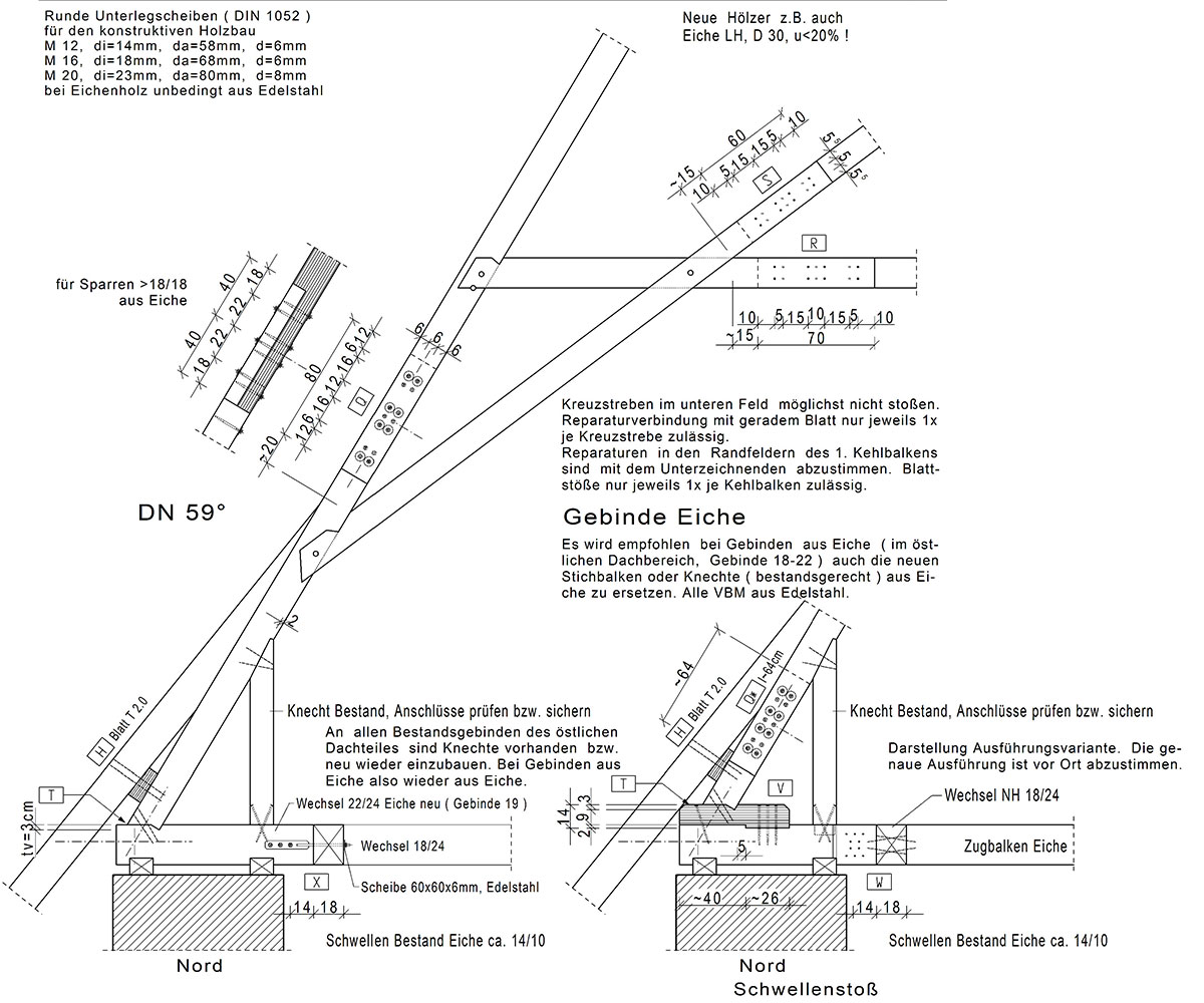
  • Standsicherheitsnachweise für Sanierung historischer Konstruktionen: Dachstühle von Kirchen, Gewölbesanierungen, Mauerwerkssanierungen
  • Beratung von Bauherren, Architekten und Unternehmen